'Horseshoe Bay House'

‘Horseshoe Bay House’, winner of many architectural awards, is a vibrant and colourful example of the very best of Australian tropical architecture. Set in a tucked away yet coveted location, it is just five minutes' walk to beautiful Horseshoe Bay beachfront,and a few doors down from the Magnetic Island koala hospital, as recently featured on Netflix.

Designed by Troppo Architects, recent recipients of the Institute of Australian Architects’ Gold Medal, the house enjoys complete privacy on its nine acres of park-like tropical bushland, which includes a small area of rainforest. The land is a delight with its glades and walkways meandering through a largely undisturbed natural wild garden, home to koalas, wallabies, and a great diversity of birdlife.

The three-pavilion building is a work of art and a celebration of regional architecture that has been visited by leading architects, designers, and landscape designers from many international countries as well as from Australia. Its Australian Institute of Architects awards include North Queensland House of the Year, North Queensland Regional Commendation, Queensland State Award for Residential Architecture (Houses), Queensland State Commendation for Steel Architecture, and Commendation in the national Dulux Colour Awards.

The house settles into its environment perfectly, with whole walls that slide open to really bring the outdoors in. The structural steel design is light, elegant, and strong, with great care taken in its detailing. Notable design elements are the breezeways through and under the pavilions, the extensive decks for outdoor living, a sail to dine under, the high ceilings and wide roof overhangs, the pool up close, and the sliding walls in either glass or in their glorious colours of lime green, acid yellow, and fluorescent orange. This house never ceases to delight and surprise at every turn as one moves through the spaces.

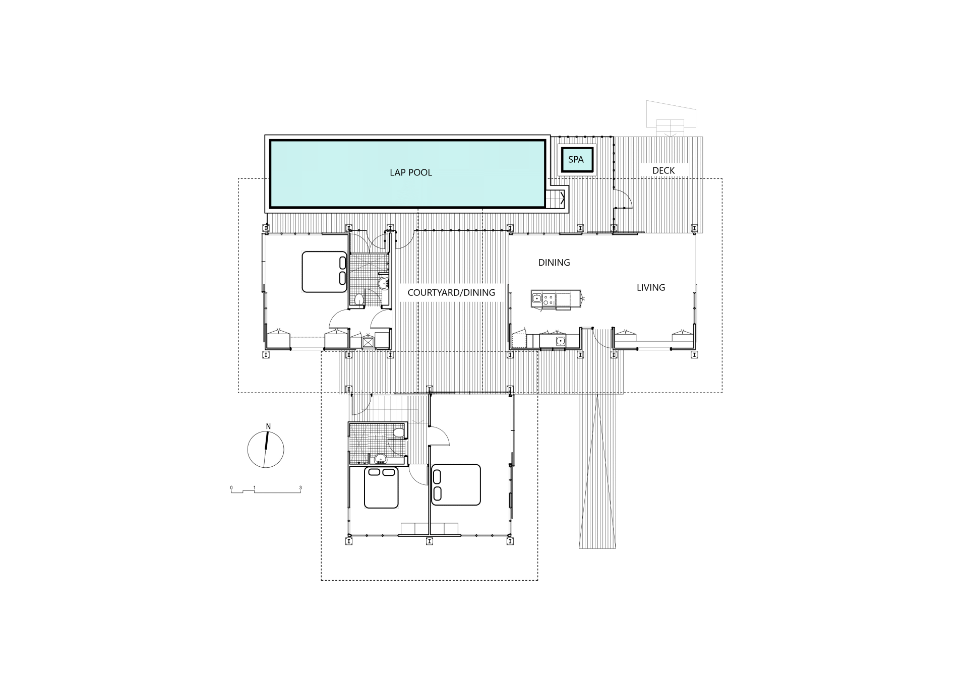
The living pavilion is accessed by a ramped walkway and the feeling of openness on entering will make you almost wonder if you are inside or outside – three of the walls slide back to extend the living space onto the north-facing front deck and the sail-covered central deck, and the screened louvre windows open up on all walls to allow breezes to penetrate.

The second pavilion contains a guest bedroom where you can wake up to the wallabies grazing on the lawn before you with the sounds of birdlife all around. This property really is a wildlife lover’s paradise with resident koalas also a semi-permanent fixture! The guest bathroom makes the most of its view and has direct access to the pool.

The main bedroom pavilion is upstairs and contains a large master bedroom with disappearing walls that slide right away on two sides, giving a feeling of being on the prow of a ship. Upstairs there is also a further bedroom and a bathroom. Underneath is a double garage/undercroft.

The house is suitable for permanent living, over-wintering, or holiday letting. The 12-metre lap pool and the spa are integrated into the decks and are designed for year-round use.

The land is zoned Low-density Residential and has three shaped driveway entrances, which would allow for potential subdivision (STCA) into further lots should a buyer wish to pursue this option immediately after purchase or land bank for the future. A minimal subdivision example is provided (see image in photo gallery) whereby 41 Horseshoe Bay Road could have approx. 4 acres, Horseshoe Bay House entered from 35a Apjohn Street could have approx. 3 acres, and the third entrance at 45/47 Apjohn Street could have approx. 2 acres, with each lot retaining great privacy and beautiful surroundings.

Horseshoe Bay is one of a handful of beaches on the tropical east coast of Australia that faces north. Glorious sunsets are one of its delights. Facing north, and being on the north side of the mountainous island, the house enjoys sun from first light until sunset.

Magnetic Island is a dry tropics paradise enjoying an average of 320 days of sunshine a year and much more pleasant weather than other north Queensland tourist areas north and south. Easily accessible from major cities, a ten-minute taxi ride from the airport and 20 minutes fast ferry ride brings you to one of Australia’s top winter destinations. Peaceful, laid-back, a nature lover's delight, and with 23 beaches and bays and two-thirds of the island designated National Park, you won’t be short of things to do – hiking around the bays or over the tops, golf, snorkelling, diving, sailing, fishing, horse riding, bowling, yoga retreats, art workshops… the list goes on.

Many residents commute to Townsville daily for work while others enjoy a relaxed retirement with little need to visit the mainland at all with most goods and services easily available. Some come north to over-winter here in the warmth and sunshine. Good infrastructure and transport services (but no traffic lights!) make it easy to get around and visitors are generally surprised at how easy it is to live here – in fact, most of the residents came here first on holiday, fell in love with the place and, having moved here, have never regretted it – but they may not tell you this for fear of the secret getting out!

3 2 2 3.67 ha
Address 41 Horseshoe Bay Rd, Horseshoe Bay
Price SOLD for $1,300,000
Property Type Residential
Property ID 958
Category House
Land Area 3.67 ha

Agent Details

Alex Strens photo

Alex Strens

0429 079 429
View Profile