Sold

Furnished Water View Apartment

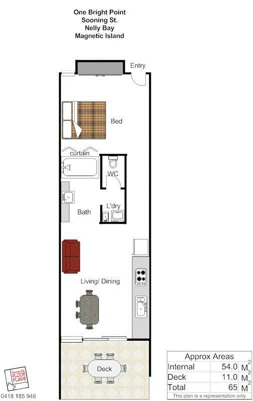
* 65m2 one bedroom fully furnished apartment ideal as holiday rental/weekender or perfect for a commuter couple
* Top floor location gives commanding views over the water, Nelly Bay beach and beyond to the twinkling lights of Townsville
* Open-plan living/dining/kitchen opens through floor-to-ceiling sliding doors to the balcony providing for seamless indoor-outdoor transition
* Contemporary yet neutral bathroom features bath, stylish vanity and separate toilet
* The bedroom offers plenty of wardrobe space and the ducted air-con and louvre windows will keep the apartment cool all year round
* Located in a resort complex, you can live the high life or let out the apartment for rental income on a holiday or permanent basis
* The resort has not one but four pools, including a waterfront pool and spa close to this apartment. Undercover parking adds to the convenience of living here.
* Just a short walk away are ferries, car hire, buses, cafes, supermarket, restaurants and the marina.
* Magnetic Island is located 8km off the coast of Townsville, North Queensland, with regular passenger and car ferries. With an average of 320 days of sunshine a year, and two-thirds of the Island being National Park, as well as 23 stunning beaches and bays, it's no wonder that people flock from all over the world to come to this Island paradise!

1 1 1
Address 1402, 146 Sooning Street, Nelly Bay
Price SOLD for $200,000
Property Type Residential
Property ID 798
Category Apartment
Floor Area 65 m2

Agent Details

Alex Strens photo

Alex Strens

0429 079 429
View Profile