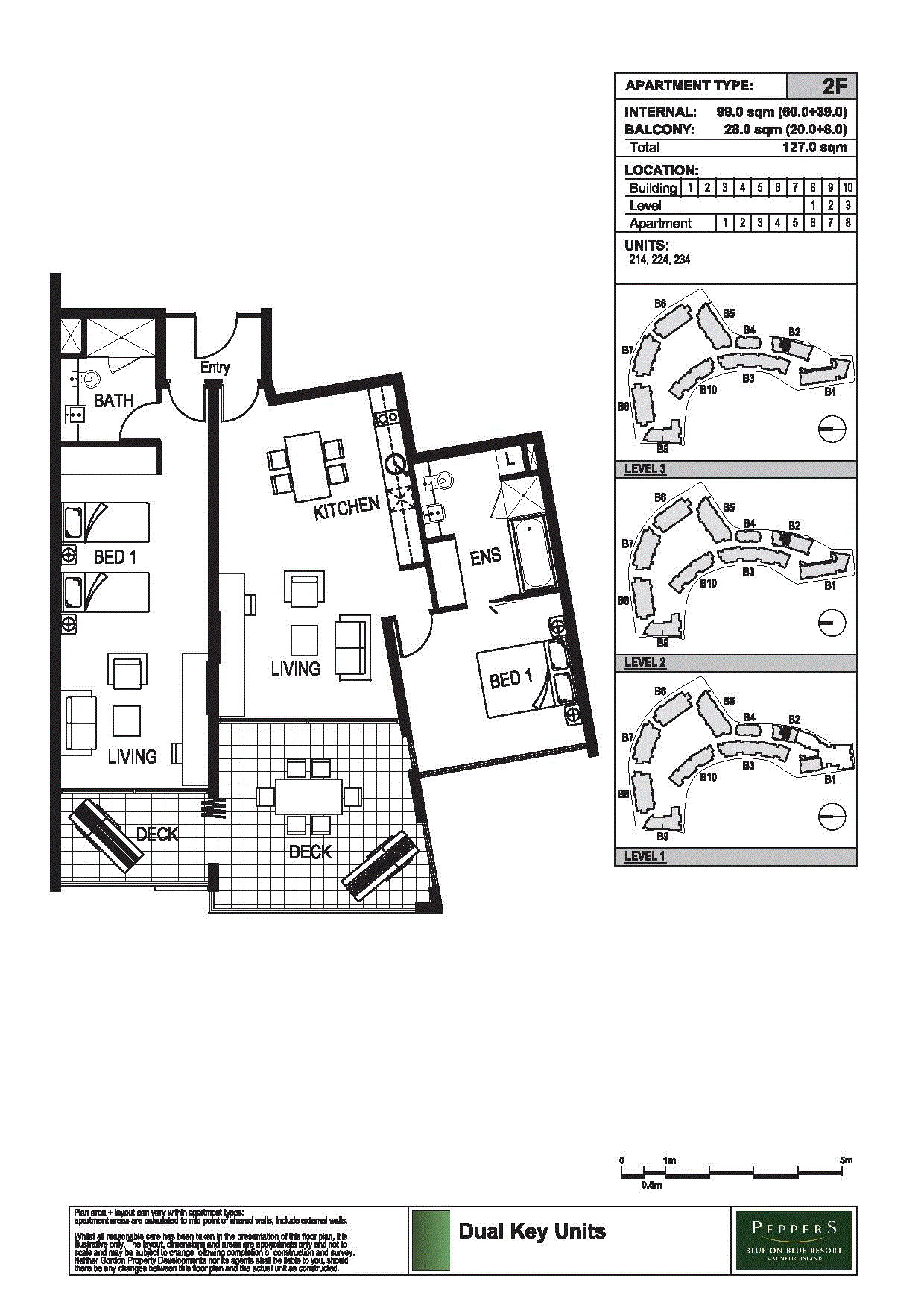
One bedroom apartment plus studio in Blue on Blue

This dual key apartment differs from the majority, being significantly larger with a one bedroom apartment plus a studio instead of two studio rooms. 

The one bedroom apartment offers a private bedroom with ensuite bathroom featuring a bath, separate shower, and smart vanity with stone benchtop. The living area is spacious with kitchenette, dining area and lounge area, opening through large floor to ceiling glass doors onto the generous covered verandah, from which limited water views can be seen. 

Adjacent is the studio unit, which is hotel room style with separate bathroom and bedroom/lounge combined opening onto a small covered balcony. This is ideal for short stays or can be let out for income whilst you stay or live in the apartment. Open up the louvred privacy shutters on the balcony to turn it into a two bedroom, two bathroom apartment if you need more space or when you have guests visiting. 

Live in one and let the other, or let them both out to maximise income, the choice is yours. Why not purchase together with a friend and take one each to minimise overheads and yet still have a modern island getaway to call your own? (note - the two dual key rooms cannot be sold individually). 

Blue on Blue is just steps from the island ferry terminal, making it super-convenient. With a beautiful waterfront restaurant onsite, day spa, and amazing lagoon pool, it's a great spot to relax and unwind. Transport options are available on the doorstep so you can explore all the island has to offer - beautiful beaches, National Park walking trails, scenic lookouts, watersports, horse riding, golf, markets and more. 

Body corp fees approx $11,220 p.a. and council rates approx $3000 p.a. including water

This information has been provided to us by third parties and we do not accept any responsibility for its accuracy. You should make your own enquiries and check the information so as to determine whether or not this information is in fact accurate. You must make your own assessment and obtain professional advice if necessary.

2 2 127 m2
Address 224/123 Sooning Street, Nelly Bay
Price SOLD for $280,000
Property Type Residential
Property ID 708
Category Apartment
Land Area 127 m2

Agent Details

Alex Strens photo

Alex Strens

0429 079 429
View Profile