Sold

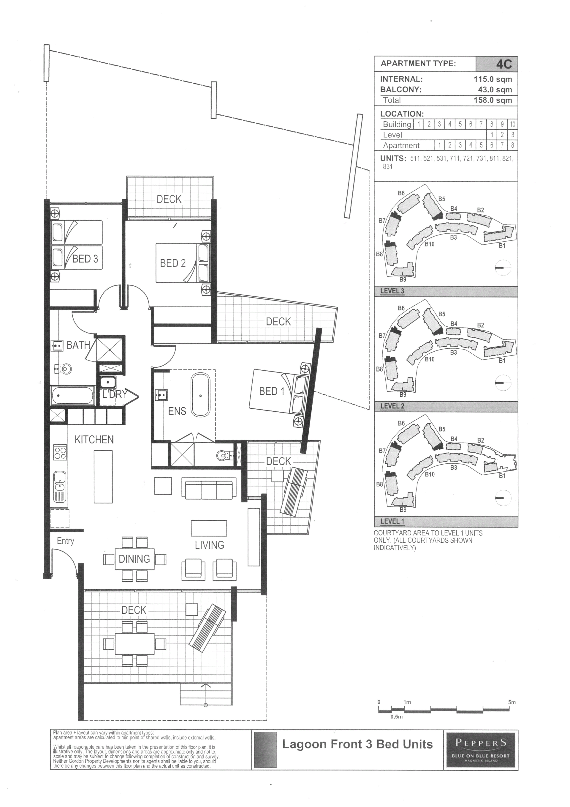
Ground floor corner apartment

Overlooking the enormous lagoon pool and marina, this spacious ground floor apartment is currently a popular holiday rental with families who can sit on the shady covered verandah and keep an eye on the kids in the pool just in front.
The verandah seamlessly transitions into the main open-plan living area with large glass sliding doors opening up to let the cool sea breeze flow through.
The stylish kitchen has a moveable island bench, loads of cupboard space, drawer dishwasher and double door ice-maker fridge.
The apartment is offered fully furnished (except some personal items) and is ready to move into or let out.
Fully air-conditioned with split system units throughout allowing efficient cooling of the rooms in use.
The master bedroom opens onto not one but two private balconies and features an integrated ensuite with stand-alone bath, rainhead shower and marble benchtop to the vanity.
The second bedroom also opens onto a balcony and all three bedrooms have generous built-in-wardrobes.
The main bathroom is large for an apartment - with bath, separate shower and stylish marble vanity.
Ground floor apartments are sought-after in this complex which does not have lift access to any three bedroom apartments. The complex does have two fabulous swimming pools, conference rooms, waterfront restaurant and bar and a day spa, all just steps from the ferry terminal.
There is a secure underground carpark and an allocated storage cage so you can leave any personal items when letting the apartment out or to store your island toys - bikes, beach gear etc.
Owners of apartments in the Blue on Blue complex are entitled to purchase marina berths in the Magnetic Marina which are not available to non-owners. Call Alex Strens for more information or to arrange an inspection of the apartment.

3 2 1
Address 811, 123 Sooning St (Blue On Blue), Nelly Bay
Price SOLD for $400,000
Property Type Residential
Property ID 573
Category Apartment
Floor Area 156 m2

Agent Details

Alex Strens photo

Alex Strens

0429 079 429
View Profile