Waterfront Living

This 423m2 absolute waterfront block enjoys panoramic views across the Coral Sea to Cape Cleveland and the twinkling lights of Townsville, with magnificent mountain views to the rear.
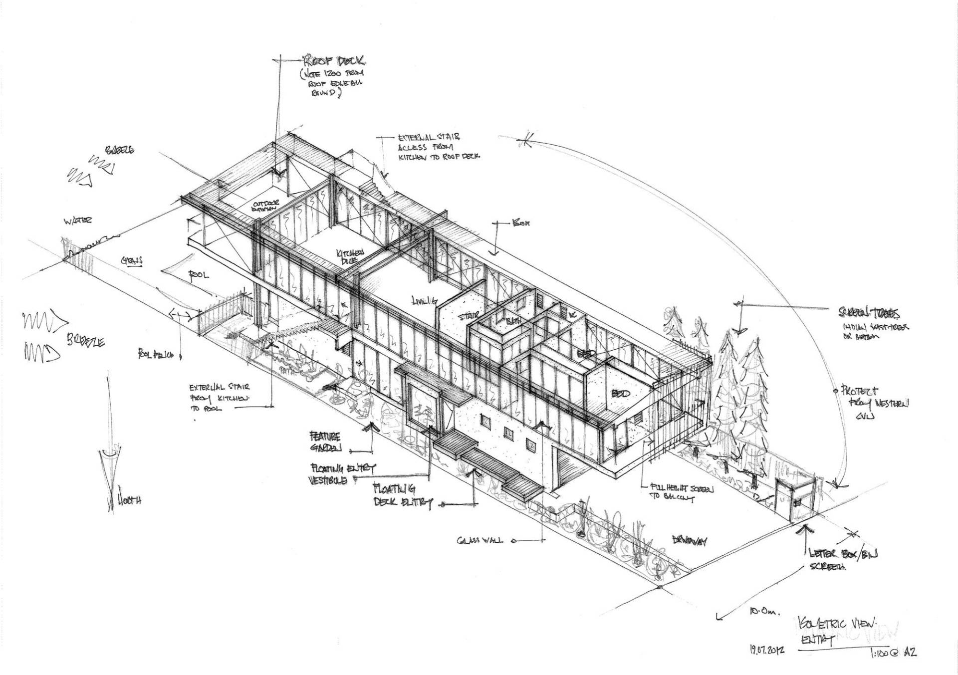
Build your dream home on the water or even a duplex (STCA) and live in one and rent the other. House plans for a stunning two storey home making the most of the water views are included in the sale.
Marina berth leases may be available to purchase on D-arm in front of the property so you can moor your boat out the front - this is a privilege afforded only to those in this marina precinct. The public boat ramp is nearby if you'd rather just bring your tinny.
Just a short stroll to the beach, shops, cafes, restaurants, school and ferry terminal makes this a very convenient place to live.
Underground town power, water and sewerage are all available in the street.

423 m2
Address 9 Terrace Place, Nelly Bay
Price SOLD for $240,000
Property Type Residential
Property ID 546
Category Vacant Land
Land Area 423 m2

Agent Details

Alex Strens photo

Alex Strens

0429 079 429
View Profile