Blue on Blue Dual Key with Marina Berth

This dual key unit makes the most of its location with views of the marina, Nelly Bay beach & mountains from the moment you step through the front door.
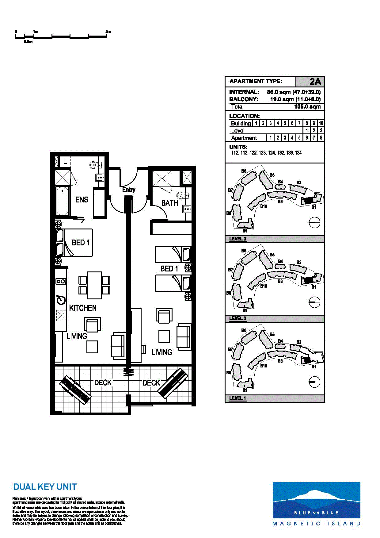
* Leasehold marina berths are available exclusively to owners of units in this complex. This apartment comes with a 12m monohull berth (B22) - if you don't want the berth, you don't have to take it!
* Two individual units on one title allowing you to maximise your income - stay in one side and let the other or let both together or separately
* The larger studio unit is comfortable for longer stays with a kitchenette, dining area, lounge, bathroom and laundry. Floor to ceiling glass doors open onto the balcony with its beautiful water views.
* The hotel-style second studio unit also has a lounge area and balcony as well as its own bathroom. The divider between the two balconies can be opened up to use the property as a two bedroom, two bathroom apartment.
* Resort-style complex with restaurant and bar on the waterfront, day spa and lagoon pool.
* Just steps to the ferry terminal, island buses and hire cars, supermarket, cafes and restaurants.

2 2
Address 134, 123 Sooning St (Blue On Blue), Nelly Bay
Price SOLD for $280,000
Property Type Residential
Property ID 441
Category Apartment
Floor Area 105 m2

Agent Details

Alex Strens photo

Alex Strens

0429 079 429
View Profile