Sold

Marina, Mountain and Ocean Views

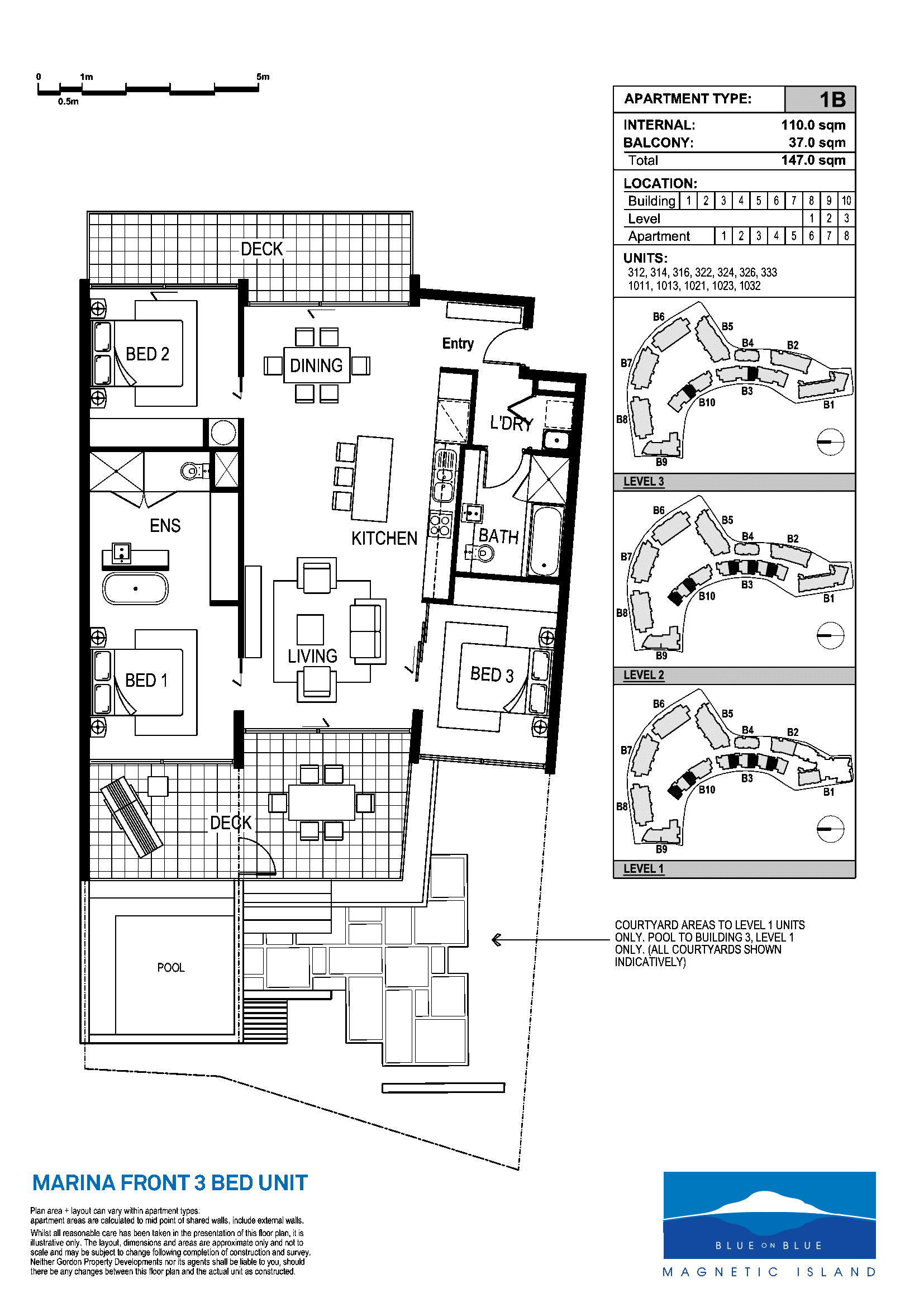
This second floor three bedroom apartment boasts exceptional views across the Magnetic Island Marina and Coral Sea with the green boulder-strewn hills of Magnetic Island as a backdrop.
The apartment is offered fully furnished, ready to move into or let out, or simply as your private Island getaway. The open-plan living area opens up through floor-to-ceiling glass doors at either end onto spacious covered verandahs allowing the cross-breeze to flow through and bringing plenty of light in.
The master bedroom also opens up onto the front verandah with magnificent water views across the masts of the sailing boats moored in the marina. The stylish ensuite bathroom features a free-standing bath, separate shower and private WC.
The second bedroom also offers lovely marina views, while the third bedroom opens onto the rear balcony. All feature built-in-wardrobes and ceiling fans, with ducted air-conditioning throughout the apartment.
The family bathroom also has a bath with a separate shower and the laundry is neatly tucked away behind the front door.
You will love living here - watch the sunrise on one side and set in the west across the water; relax with a cool drink on your balcony as the boats sail in and out in front of you; pop down to the resort's restaurant, day spa or amazing lagoon pool, or walk to the nearby restaurants, shops and cafes.
Ideal for boaties, only owners of Blue on Blue apartments are able to purchase marina berth leases in the Magnetic Island Marina. The complex is very conveniently located just steps from the ferry terminal with a number of transport options available to take you around beautiful Magnetic Island, to marvel at the 23 beaches and bays, picturesque National Park walking trails and friendly native wildlife, including koalas, wallabies and lots of birdlife.
Call today to arrange an inspection.

3 2 1
Address 326, 123 Sooning St (Blue On Blue), Nelly Bay
Price SOLD for $445,000
Property Type Residential
Property ID 414
Category Apartment

Agent Details

Alex Strens photo

Alex Strens

0429 079 429
View Profile