Sold

Blue on Blue Dual Key

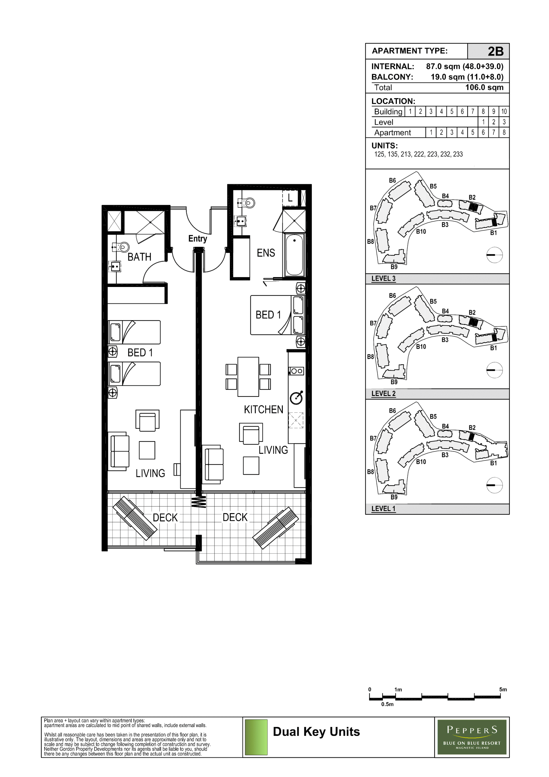
This dual key unit makes the most of its location with water views across the marina entrance and Nelly Bay mountains.
* Two individual units on one title allowing you to maximise your income - stay in one side and let the other or let both together or separately
* The larger studio unit is comfortable for longer stays with a kitchenette, dining area, lounge, bathroom and laundry. Floor to ceiling glass doors open onto the balcony with its water views.
* Leasehold marina berths are available exclusively to owners of units in this complex
* The hotel-style second studio unit also has a lounge area and balcony as well as its own bathroom. The divider between the two balconies can be opened up to use the property as a two bedroom, two bathroom apartment.
* Resort-style complex with restaurant and bar on the waterfront, day spa and lagoon pool.
* Just steps to the ferry terminal, island buses and hire cars, supermarket, cafes and restaurants.
2 2
Address 233, 123 Sooning St (Blue On Blue) St, Nelly Bay
Price SOLD for $215,000
Property Type Residential
Property ID 344
Category Unit
Floor Area 106 m2

Agent Details

Alex Strens photo

Alex Strens

0429 079 429
View Profile