Pool, Marina & Ocean Views

This top floor apartment boasts beautiful views over the enormous lagoon pool to the sailboats bobbing in the marina and all the way across the blue waters of the Coral Sea to the mainland. 

The open-plan living area opens onto the large covered balcony through floor to ceiling glass sliding doors, allowing the gentle sea breezes in, although there's air con for those really hot summer days. 

Offered fully furnished, the apartment is ready to move into or let out. Peppers manage the resort but you are free to do as you choose with your apartment. 

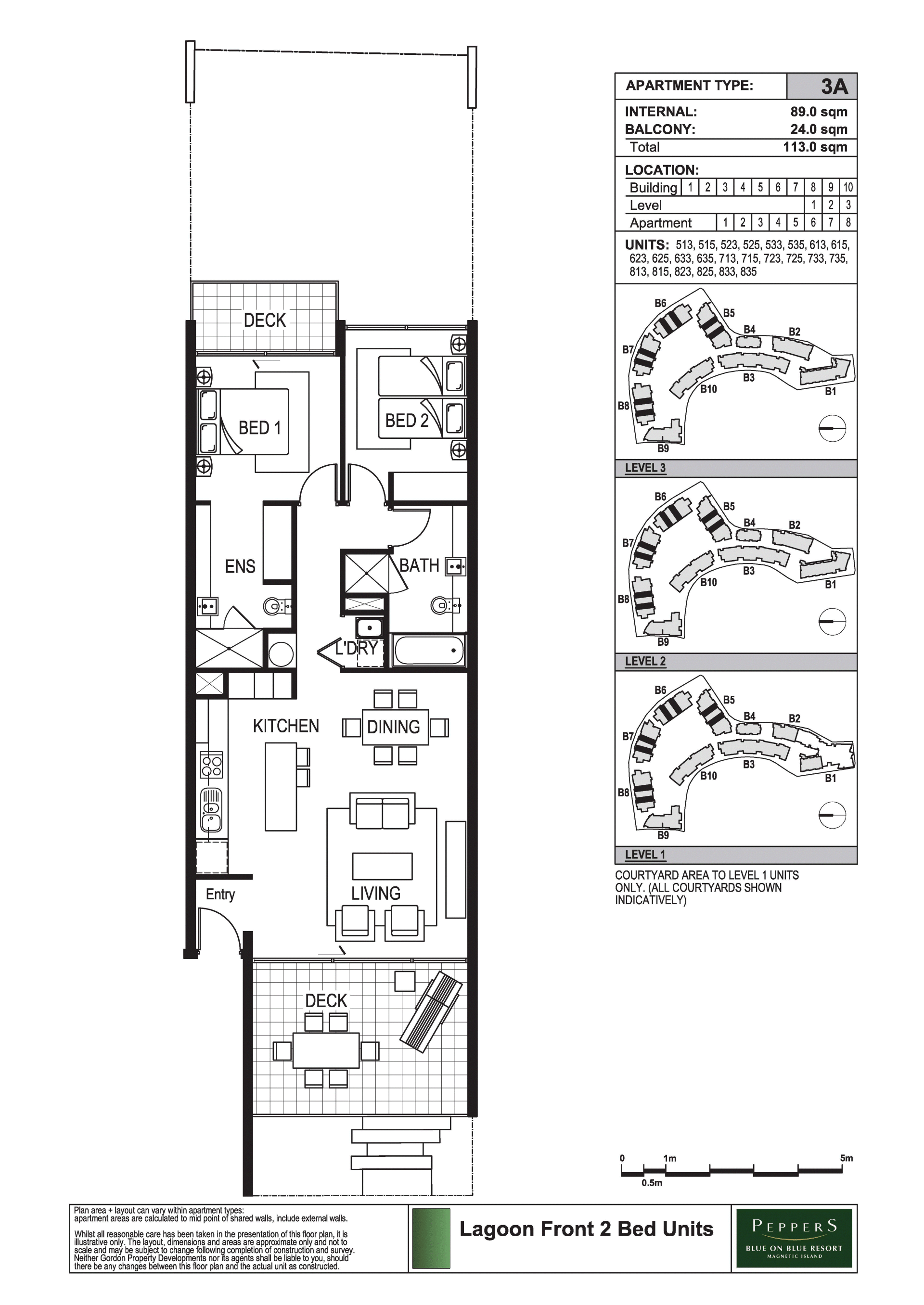
The master bedroom opens onto a small balcony and has a spacious ensuite bathroom and built-in-wardrobe. The family bathroom has a bath as well as a separate shower and is located next to the second bedroom. NB the floorplan supplied is mirror image of this apartment. 

The drawcard of the complex is the amazing lagoon pool, but there's also another resort pool, lovely restaurant, day spa and marina. The ferry terminal is right there on the doorstep as is a supermarket and it's just a two minute walk to other restaurants too. 

Currently a holiday rental apartment with Peppers, please call to arrange an inspection as we need to check availability. 

Body corp fees approx $14,980p.a. and council rates $4060 p.a. approx including water (lower if owner occupier). 

 

This information has been provided to us by third parties and we do not accept any responsibility for its accuracy. You should make your own enquiries and check the information so as to determine whether or not this information is in fact accurate. You must make your own assessment and obtain professional advice if necessary.

2 2 1
Address 832, 123 Sooning St (Blue On Blue), Nelly Bay
Price $595,000
Property Type Residential
Property ID 1673
Category Apartment
Floor Area 114 m2

Agent Details

Alex Strens photo

Alex Strens

0429 079 429
View Profile