Marina, Island & Ocean View Corner Superior Dual Key Apartment

This corner apartment is larger than the average dual key and also benefits from additional light with an extra-wide balcony and additional bedroom window. Enjoying views over the marina to the hills and beaches of the island and further across the Coral Sea to the mainland, you'll love relaxing here. Pop down to the resort-style lagoon pool or head out for the day to one of the island's 23 beautiful beaches and bays, then jump on a sunset sail from the marina and indulge at the onsite restaurant and bar on your return. 

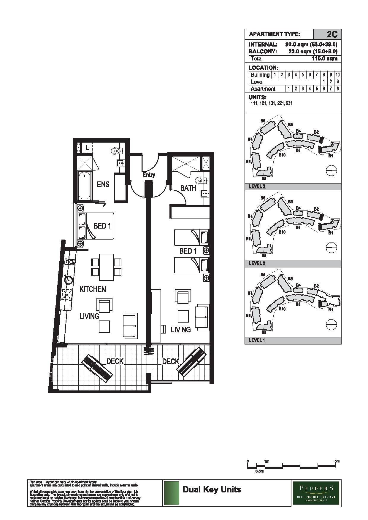
With the dual key layout (please see the floorplan), you can stay in one side while you let out the other or have family or friends to visit and maintain some separation or come together by opening up the balcony privacy screen. The larger side of the unit is open-plan studio-style with kitchenette, dining table and lounge area opening up onto the balcony. The bathroom features a bathtub, separate shower, vanity with granite benchtop and laundry cupboard. 

The smaller side is ideal for short stays, a hotel room with king/twin bed, lounge area and bathroom, opening onto a smaller balcony, perfect for two to enjoy a sunrise cuppa or a sundowner as the colours shift over the water and granite boulders of the hills. 

Onsite managers Peppers can manage your apartment when you're not there or lock it up and leave without worrying about maintaining a garden or pool when you want to go away. 

Just steps from the ferry terminal and island transport options, the location couldn't be more perfect as a base to explore the island. 

Body corp fees approx $14,100 p.a. and council rates approx $3600 p.a. 

Contact Alex to arrange an inspection - please provide as much notice as possible as inspections are fitted around existing guest bookings.  

This information has been provided to us by third parties and we do not accept any responsibility for its accuracy. You should make your own enquiries and check the information so as to determine whether or not this information is in fact accurate. You must make your own assessment and obtain professional advice if necessary.

2 2
Address 121, 123 Sooning St (Blue On Blue), Nelly Bay
Price SOLD for $490,000
Property Type Residential
Property ID 1617
Category Apartment
Floor Area 115 m2

Agent Details

Alex Strens photo

Alex Strens

0429 079 429
View Profile