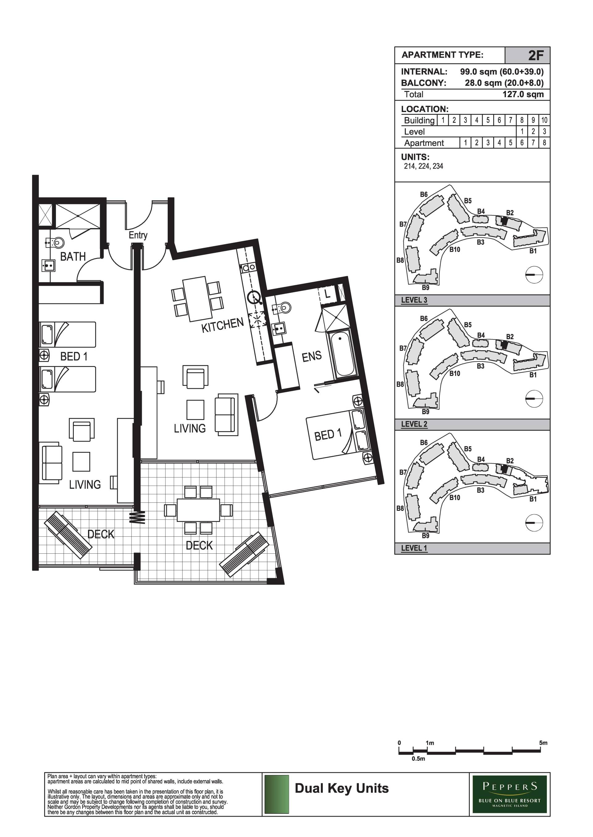
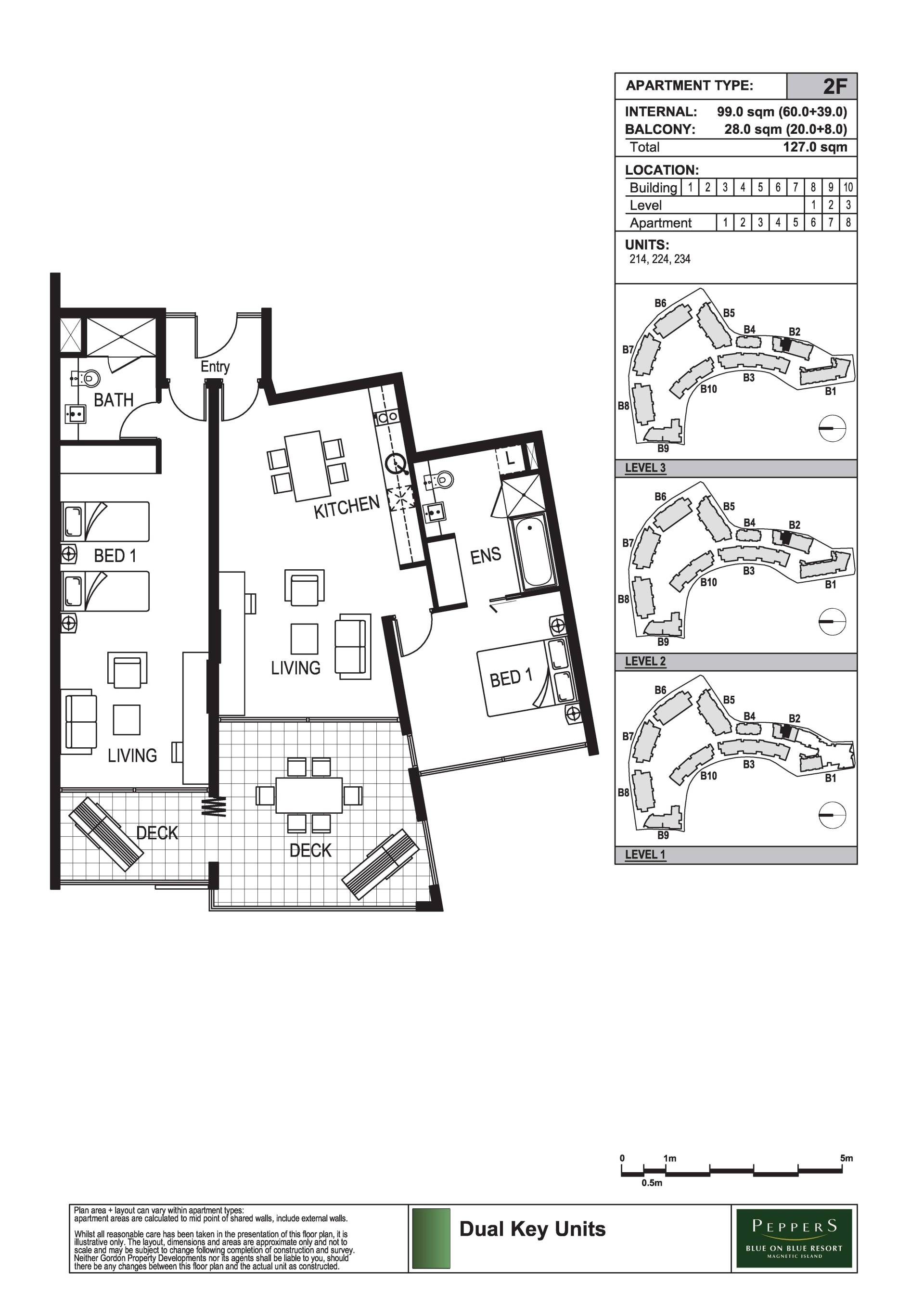
One bedroom apartment plus studio unit in Blue on Blue

This dual key apartment differs from the majority, being significantly larger with a one bedroom apartment plus a studio instead of two studio rooms, and benefits from lift access. 

The one bedroom apartment offers a private bedroom with newly renovated ensuite bathroom featuring accessible walk-in shower and smart vanity with granite benchtop. The living area is spacious with kitchen, dining area and lounge area, opening through large floor to ceiling glass doors onto the generous covered verandah, from which limited water views can be seen. 

Adjacent is the studio unit, which is hotel room style with separate bathroom and bedroom/lounge combined opening onto a small covered balcony. This is ideal for short stays or can be let out for income whilst you stay or live in the apartment. Open up the louvred privacy shutters on the balcony to turn it into a two bedroom, two bathroom apartment if you need more space or when you have guests visiting. 

Blue on Blue is just steps from the island ferry terminal, making it super-convenient. With a beautiful waterfront restaurant onsite, day spa, and amazing lagoon pool, it's a great spot to relax and unwind. Transport options are available on the doorstep so you can explore all the island has to offer - beautiful beaches, National Park walking trails, scenic lookouts, watersports, golf, markets and more. 

Body corp fees approx $12,845p.a. and council rates approx $3400 p.a. including water.

This information has been provided to us by third parties and we do not accept any responsibility for its accuracy. You should make your own enquiries and check the information so as to determine whether or not this information is in fact accurate. You must make your own assessment and obtain professional advice if necessary.

2 2 127 m2
Address 224/123 Sooning St 'Blue On Blue', Nelly Bay
Price SOLD for $420,000
Property Type Residential
Property ID 1551
Category Apartment
Land Area 127 m2

Agent Details

Alex Strens photo

Alex Strens

0429 079 429
View Profile