Premium corner plunge pool apartment at Blue on Blue

This ground floor corner apartment at Blue on Blue not only has its own private plunge pool and garden but is also well-located at the quieter end of the complex. 

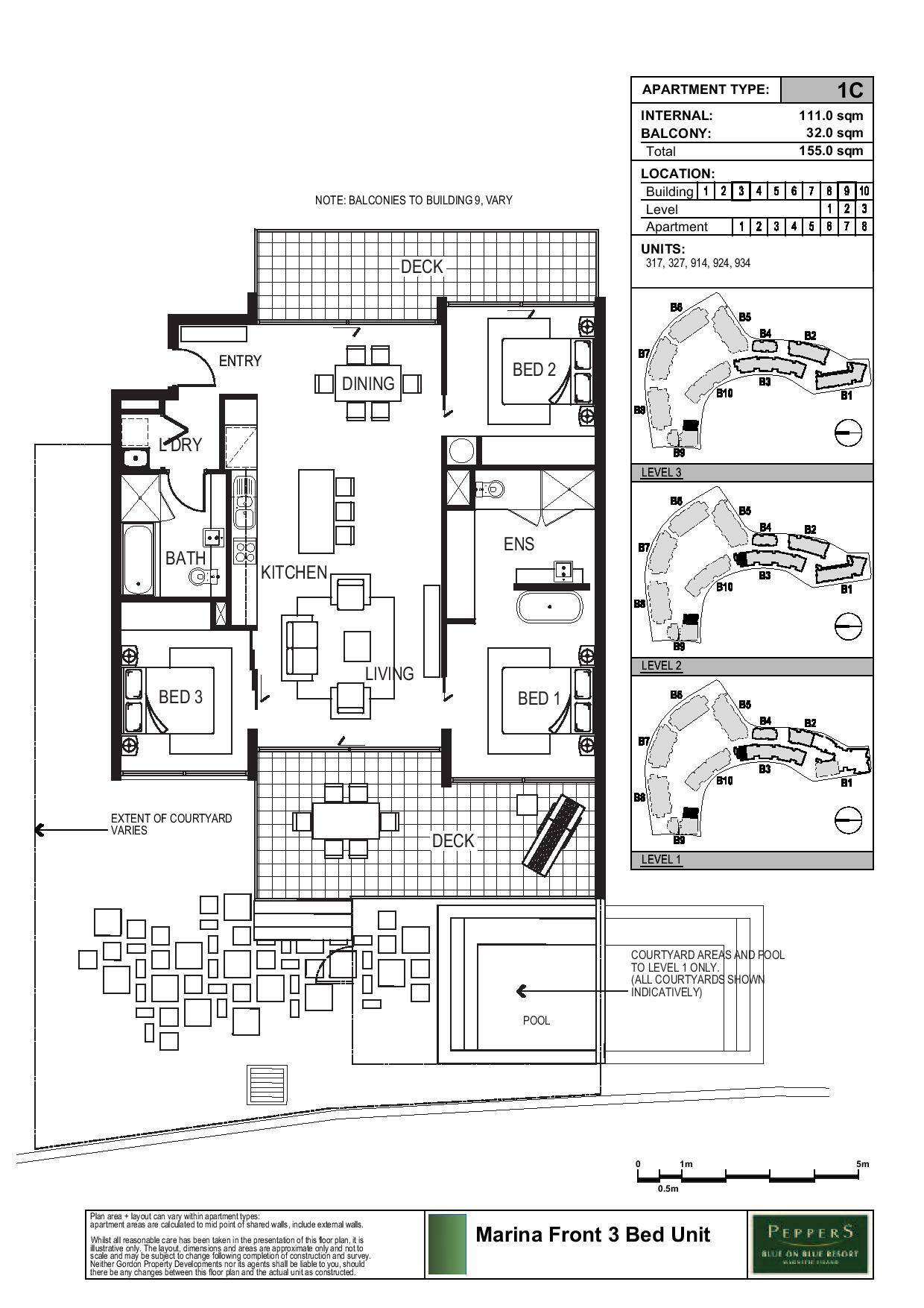
It is light and airy with floor to ceiling glass doors at each end of the open-plan living area, with the marina-front patio, pool and garden at one end, whilst at the other end the patio is well screened with shrubbery. 

The master bedroom opens onto the patio with views over the plunge pool and garden to the yachts in the marina and mainland beyond. The ensuite bathroom is open-plan to allow views from the bath tub, whilst still providing for some privacy in the shower and toilet. 

The second bedroom also looks onto the marina, whilst the third bedroom opens onto the back patio, with built-in-wardrobes to all. 

Offered fully furnished, you can move straight in or enjoy the benefit of the forward holiday bookings as this property is well established as a popular holiday rental. 

Blue on Blue is ideally located right next to the ferry terminal, with a selection of shops and restaurants a very short walk away, whilst there's also an on-site waterfront restaurant and day spa to enjoy.

A lock-up storage cage and car parking space is allocated in the underground secure carpark so you can leave your personal effects between stays if you choose to holiday let your apartment when you're not here.

Body corp fees approx $16,050 p.a. and council rates approx $3400 p.a. inc water.

Ground floor apartments in this complex are highly sought-after as there are no lifts to the other levels. Contact Alex to arrange a private inspection by appointment or try before you buy and book to stay by calling the Best of Magnetic office.  

This information has been provided to us by third parties and we do not accept any responsibility for its accuracy. You should make your own enquiries and check the information so as to determine whether or not this information is in fact accurate. You must make your own assessment and obtain professional advice if necessary.

3 2 1
Address 914, 123 Sooning St 'Blue On Blue', Nelly Bay
Price SOLD for $845,000
Property Type Residential
Property ID 1511
Category Apartment
Floor Area 155 m2

Agent Details

Alex Strens photo

Alex Strens

0429 079 429
View Profile