Quality built home close to the beach

This modern home offers the opportunity for dual living if desired or a well-designed family home or holiday home. 

On a landscaped corner lot, the property feels much larger than its 608m2, and with only the rear garden and swimming pool fenced, there's scope to add further to the fenced area to incorporate a lawned area to the front. 

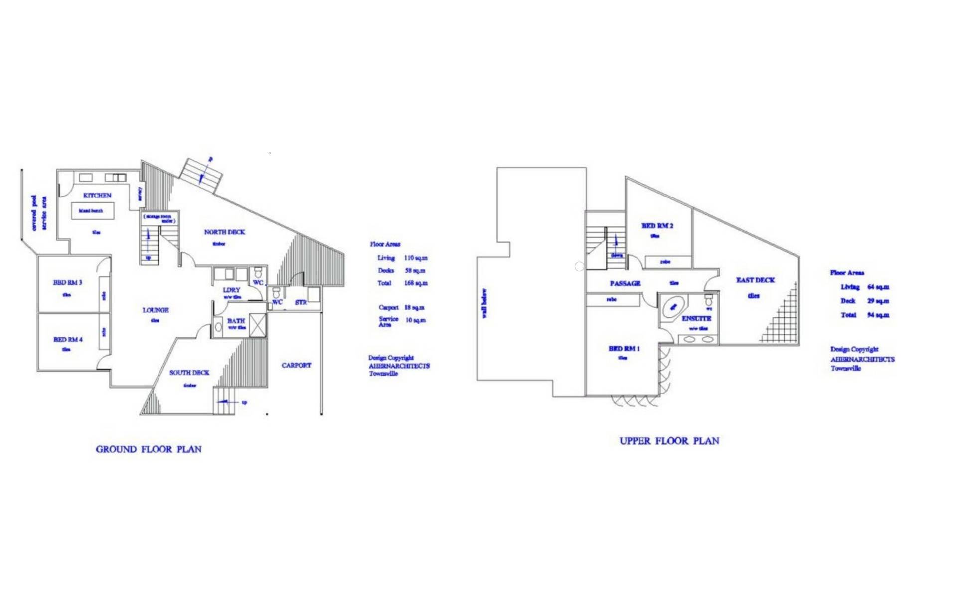
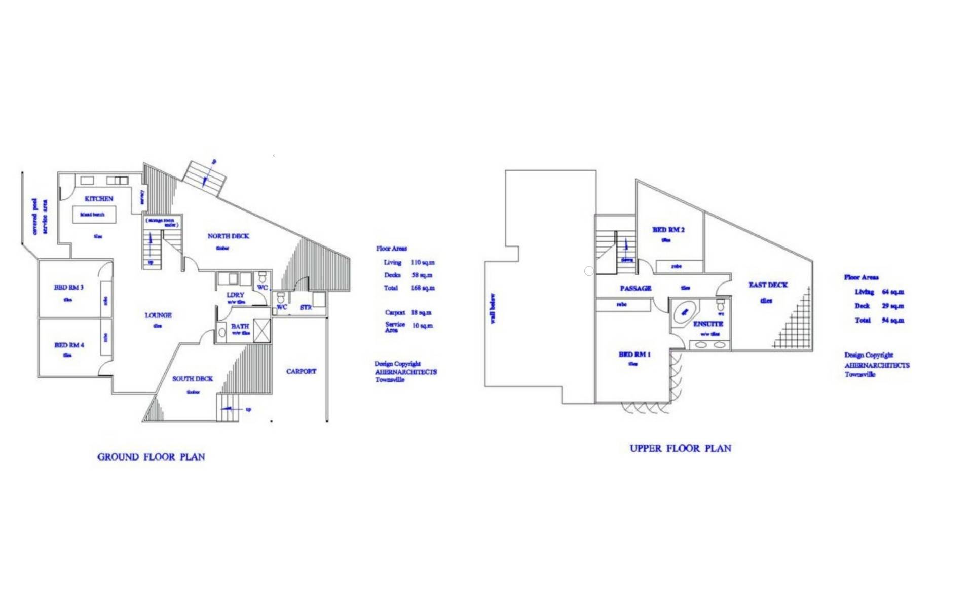
Enter undercover from the carport to the front deck, one of the three covered decks on the home and a lovely place to watch the sun go down as the colours of the granite boulders on the hills change hue. The front door brings you into the main living area, off which are two bedrooms, the laundry, downstairs bathroom and access to the back deck. The kitchen is just off the living area and features a spectacular granite waterfall island bench and breakfast bar. There's a double dish drawer dishwasher, loads of drawer and cupboard space and a servery to the back deck. As with the rest of the house, the kitchen has both split system air conditioning and lots of louvre windows providing light and ventilation whatever the weather.

Both downstairs bedrooms are a generous size with built-in-wardrobes, and dual aspect windows with garden views. The downstairs bathroom is equally spacious with a shower and vanity and separate toilet adjacent along with the internal laundry. There's even a third toilet and basin within the external store-room off the back deck, ideal for those using the pool or whilst doing some gardening. 

The back deck has plenty of space for both a dining area and lounge area but with three decks to choose from, you won't find it hard to choose where to relax. The inground pool is exceptionally easy to maintain and very private. 

Back inside, there's storage under the stairs and a door at the top of the stairs so that if you choose to holiday let, you can keep upstairs locked off as your own private sanctuary if you wish. The master suite features a luxurious corner spa bath with rainhead shower over and double vanity with stone benchtops. The bedroom itself is huge, with large mirrored built-in-wardrobes and beautiful tree views to the hills beyond. There's a second bedroom or office upstairs, also with built-in-robes. At the end of the hallway upstairs, there's a large covered deck which captures both the northerly and south-easterly breezes perfectly and is the ideal spot for a morning coffee as the sun lights up the trees and hills over Horseshoe Bay. 

There's room for additional parking to the right of the carport if required, as well as on-street parking. It's an easy 15 minute walk by road to the beach or take the scenic shortcut through the Horseshoe Bay lagoon Conservation Park and do a spot of bird-watching on the way through. There's a superb selection of cafes, restaurants and shops on the beachfront, with regular markets in the park and year-round watersports. The north-facing sandy curve of beach is perfect for swimming or strolling year-round. Less than ten minutes' drive is the ferry terminal, supermarkets and medical facilities of Nelly Bay, where regular ferries and vehicle ferries make the short crossing to Townsville all day every day. 

Council rates approx $3200 p.a. including water.

Contact Alex to arrange your private inspection by appointment. 

 

This information has been provided to us by third parties and we do not accept any responsibility for its accuracy. You should make your own enquiries and check the information so as to determine whether or not this information is in fact accurate. You must make your own assessment and obtain professional advice if necessary.

4 2 1 608 m2
Address 19 Corica Cres, Horseshoe Bay
Price SOLD for $875,000
Property Type Residential
Property ID 1465
Category House
Land Area 608 m2
Floor Area 279 m2

Agent Details

Alex Strens photo

Alex Strens

0429 079 429
View Profile