Corner Dual Key apartment with ocean views

This corner dual key apartment is larger than most and has lift access, plus it boasts premium position with good views over the ferry terminal and across the Coral Sea to the mainland in the distance. 

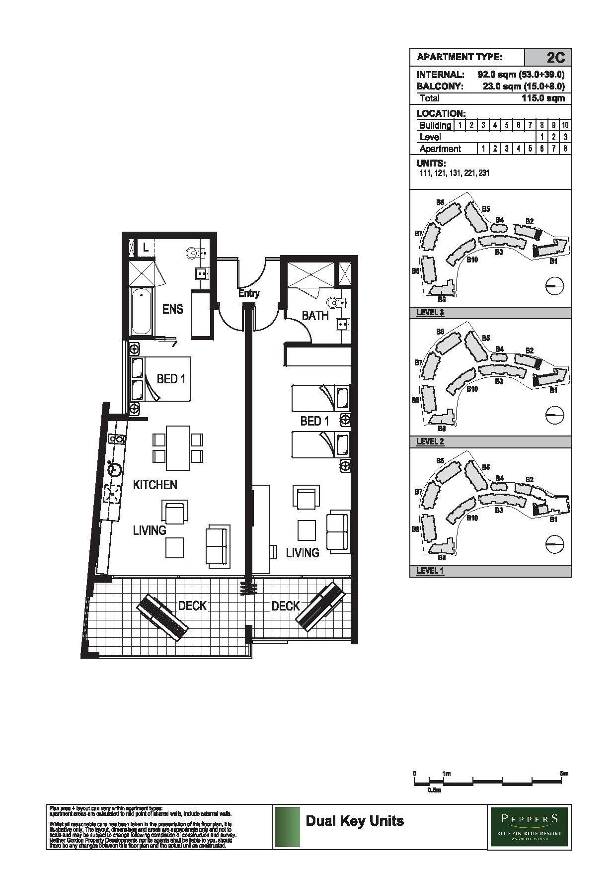
Comprising two sides that can be let out (or lived in) separately, the smaller side is a hotel room with king/twin beds, bathroom (shower, toilet, vanity), lounge area with TV and tea/coffee making facilities and balcony. 

The larger side is very comfortable for a longer stay with kitchenette and dining area, lounge, larger balcony, queen bed, bathroom - with bath and separate shower - and laundry.

This dual key unit is air-conditioned with split system air-conditioners and comes fully furnished. It is currently managed by the onsite manager Peppers and is a popular rental option due to the lift access and views. It is also much lighter than most due to its corner position so it angles out providing a wider balcony and therefore wider opening to the balcony as well as an open slatted side wall to the balcony as opposed to the more usual solid concrete wall.  You can choose to use the apartment how you wish - you can live in this complex full-time or continue to holiday let and stay whenever you want.

'Blue on Blue' is extremely conveniently located just metres from the ferry terminal and a very short walk to a selection of shops, cafes, restaurants and transport options. It has an onsite waterfront restaurant, day spa, and two swimming pools, including the enormous lagoon pool loved by people of all ages.

Magnetic Island is very easy to get to - a direct flight to Townsville from most major cities, then a ten minute taxi to the ferry terminal. A short ferry ride brings you into Nelly Bay and you'll instantly relax and unwind - Magnetic Island is known for it's laidback atmosphere, whilst also offering all the infrastructure that most other islands lack due to the large permanent resident population.

Body corp fees approx $12,530 p.a. and council rates approx $3470 p.a. including water. 

This information has been provided to us by third parties and we do not accept any responsibility for its accuracy. You should make your own enquiries and check the information so as to determine whether or not this information is in fact accurate. You must make your own assessment and obtain professional advice if necessary.

2 2
Address 231, 123 Sooning St 'Blue On Blue', Nelly Bay
Price SOLD for $380,000
Property Type Residential
Property ID 1464
Category Apartment
Floor Area 115 m2

Agent Details

Alex Strens photo

Alex Strens

0429 079 429
View Profile