Sold

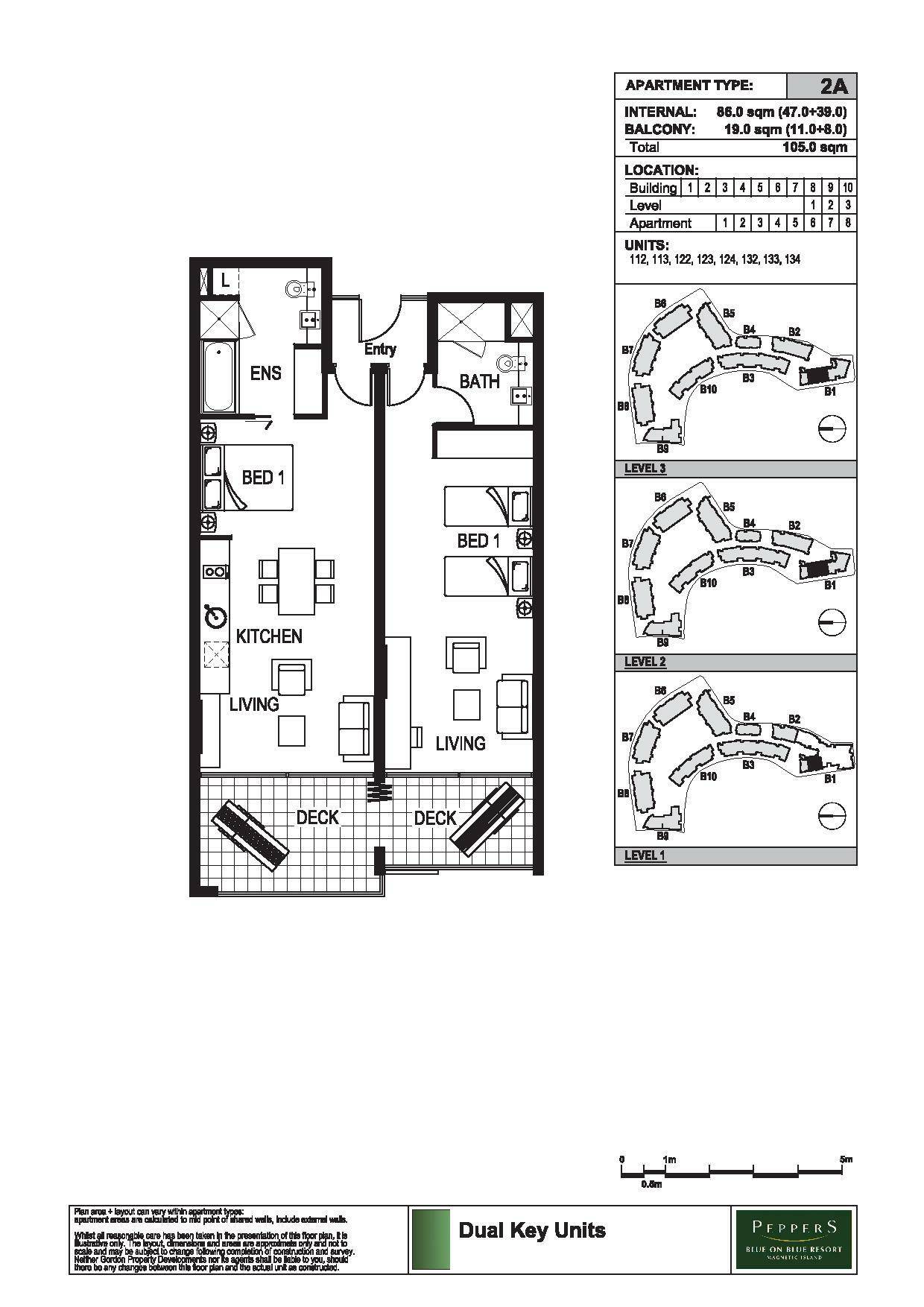
Blue on Blue Waterfront Dual Key Apartment

This waterfront dual key apartment makes the most of its location with views of the marina & mountains from the moment you step through the front door.
* Two individual units on one title allowing you to maximise your income - stay in one side and let the other or let both through the onsite managers Peppers or an external agent
* The larger studio unit is comfortable for longer stays with a kitchenette, dining area, lounge, bathroom and laundry. Floor to ceiling glass doors open onto the balcony with its beautiful water views.
* Leasehold marina berth available with the apartment
* The hotel-style second studio unit also has a lounge area and balcony as well as its own bathroom. 
* Resort-style complex with restaurant and bar on the waterfront, day spa and lagoon pool.
* Just steps to the ferry terminal, island buses and hire cars, supermarket, cafes and restaurants.

Body corp fees approx $11,340 p.a. and council rates approx $3400 p.a. including water

2 2
Address 113/123 Sooning St (Blue On Blue), Nelly Bay
Price SOLD for $465,000
Property Type Residential
Property ID 1458
Category Apartment
Floor Area 105 m2

Agent Details

Alex Strens photo

Alex Strens

0429 079 429
View Profile