Dual Key Apartment at Blue on Blue

Comprised of two separate rooms that can be let independently of each other, this dual key apartment offers the best of both worlds. Stay in one side without paying accommodation fees whilst the other side brings in rental income. 

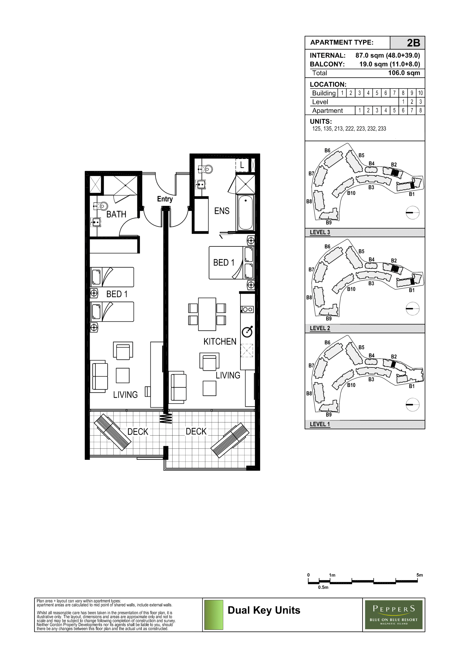
The hotel room side includes: king bed (can be split for twin beds), lounge area, bathroom and balcony with water glimpses over the ferry terminal carpark area. The balcony shutters between the two rooms can be opened up if you have friends staying. 

The larger side is very comfortable for a longer stay with kitchenette and dining area, lounge, larger balcony, queen bed, bathroom and laundry.

This dual key unit is air-conditioned with split system air-conditioners and comes fully furnished. It is currently managed by the onsite manager Peppers and is a popular rental option due to the lift access and shade from the hot afternoon sun that the marina-side apartments get. You can choose to use the apartment how you wish - you can live in this complex full-time or continue to holiday let and stay whenever you want.

'Blue on Blue' is extremely conveniently located just metres from the ferry terminal and a very short walk to a selection of shops, cafes, restaurants and transport options. It has an onsite waterfront restaurant, day spa, and two swimming pools, including the enormous lagoon pool loved by people of all ages.

Magnetic Island is very easy to get to - a direct flight to Townsville from most major cities, then a ten minute taxi to the ferry terminal. A short ferry ride brings you into Nelly Bay and you'll instantly relax and unwind - Magnetic Island is known for it's laidback atmosphere, whilst also offering all the infrastructure that most other islands lack due to the large permanent resident population.

Body corp fees approx $12,293 p.a. and council rates approx $4060 p.a. including water.

This information has been provided to us by third parties and we do not accept any responsibility for its accuracy. You should make your own enquiries and check the information so as to determine whether or not this information is in fact accurate. You must make your own assessment and obtain professional advice if necessary.

2 2
Address 223, 123 Sooning St 'Blue On Blue', Nelly Bay
Price $405,000
Property Type Residential
Property ID 1441
Category Apartment
Floor Area 106 m2

Agent Details

Alex Strens photo

Alex Strens

0429 079 429
View Profile