Very spacious ground floor apartment

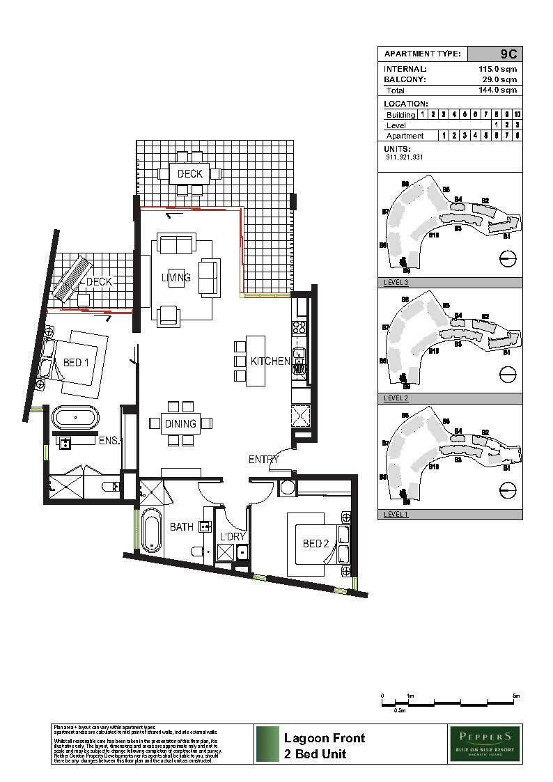
This ground floor apartment is significantly larger than other other two bedroom apartments in the 'Blue on Blue' complex at 144m2 - almost the size of a three bedroom. Conveniently located on the ground floor, it is peaceful and private but just steps from the magnificent lagoon pool. The covered L-shaped terrace catches a little morning sun but avoids the hot westerly afternoon sun so it is pleasant any time of year. The huge open-plan living area catches the breeze beautifully although the apartment is fully air-conditioned if that is what you prefer. 

The master bedroom opens onto its own terrace and features an ensuite bathroom with bath, marble-topped vanity and separate shower. The second bedroom is very separately located to the rear of the apartment with the second bathroom adjacent - also with bath, separate shower and marble-topped vanity, so your guests can have their own space. 

Offered fully furnished, the apartment is easy to holiday let and use when you want, or why not move in and enjoy the ease of apartment living, letting someone else look after the pool and garden. 

Body corp approx $12,750 p.a. and council rates approx $3300 p.a. including water

Blue on Blue offers a waterfront restaurant, conference rooms, day spa, tropical gardens, two fantastic swimming pools and the option to purchase a marina berth in the Magnetic Marina which hosts Magnetic Island Race Week each year. Just steps from the ferry terminal, you probably won't need a car but there is an underground carpark and the apartment comes with a lock-up storage cage. 

With its 23 beaches and bays, numerous National Park walking trails and multitudes of outdoor activities, as well as a huge array of wildlife, Magnetic Island is becoming evermore popular yet still retains a laid-back village appeal. Just 25 minutes from Townsville, passenger and vehicle ferries run all day every day and the island enjoys all the comforts of being a suburb of a regional city - with water and power from the mainland, medical facilities, easy delivery of all manner of supplies and a great selection of cafes and restaurants. 

 

2 2 1
Address 911/123 Sooning St (Blue On Blue), Nelly Bay
Price SOLD for $475,000
Property Type Residential
Property ID 1408
Category Apartment
Floor Area 144 m2

Agent Details

Alex Strens photo

Alex Strens

0429 079 429
View Profile