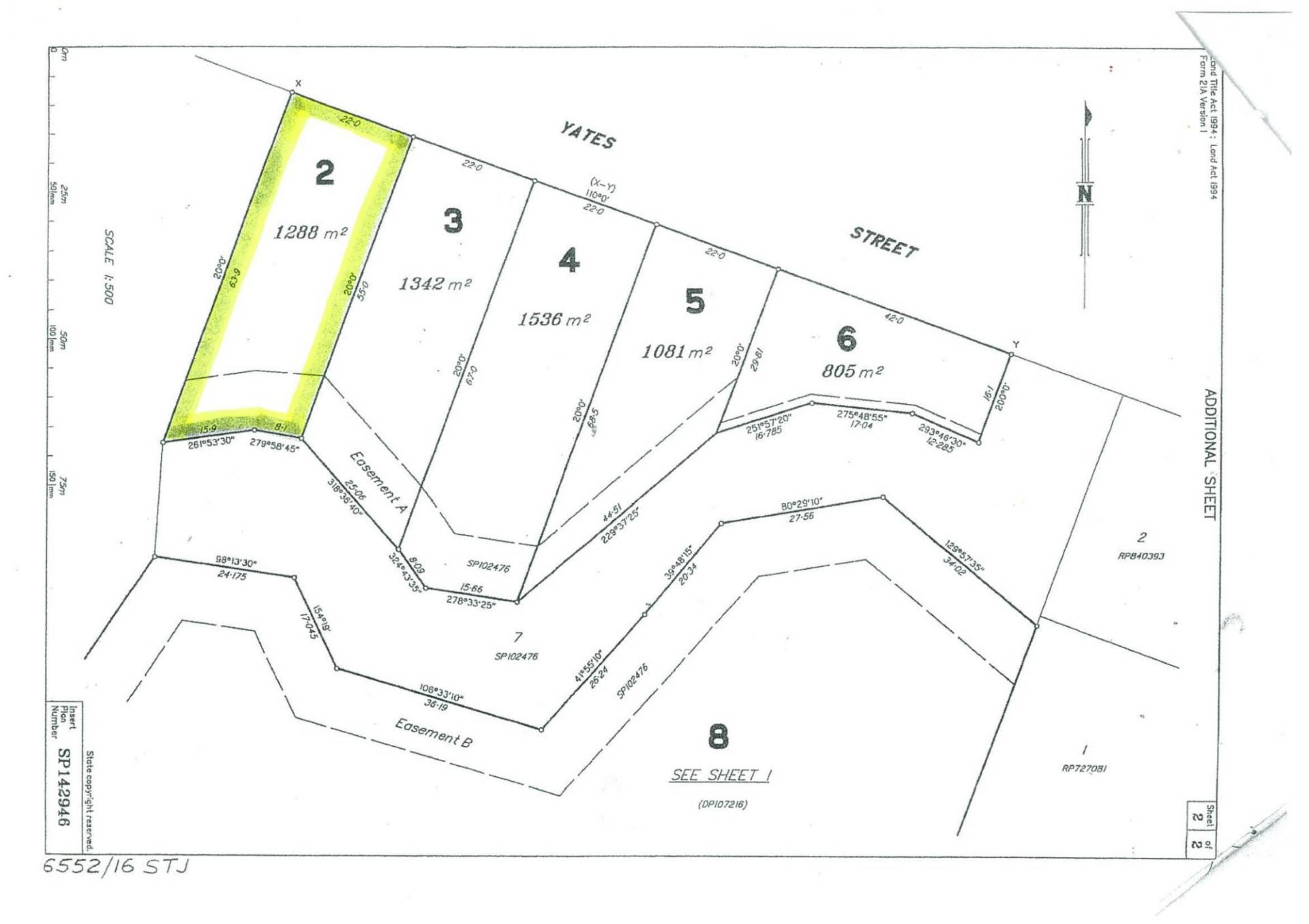
1288sqm land with seasonal creek to rear

* Big residential block of 1288sqm

* Natural setting with established trees and seasonal creek on rear boundary

* Cleared to enable choice of house site

* From 40 Yates St, turn right and the beach is just 450m at the end of the road, or turn left 200m to the other end for the National Park and a track to nearby seasonal waterfalls 

* Views to surrounding mountains

* Power, water and sewerage all available

* Close to shops, cafes, several restaurants, school, & transport

1,288 m2
Address 40 Yates Street, Nelly Bay
Price SOLD for $250,000
Property Type Residential
Property ID 1320
Category Vacant Land
Land Area 1,288 m2

Agent Details

Alex Strens photo

Alex Strens

0429 079 429
View Profile