Blue on Blue 3 bedroom Apartment

This middle level corner apartment affords lovely views across the marina to the scenic hills of Magnetic Island, strewn with the iconic rounded granite boulders and hoop pines. 
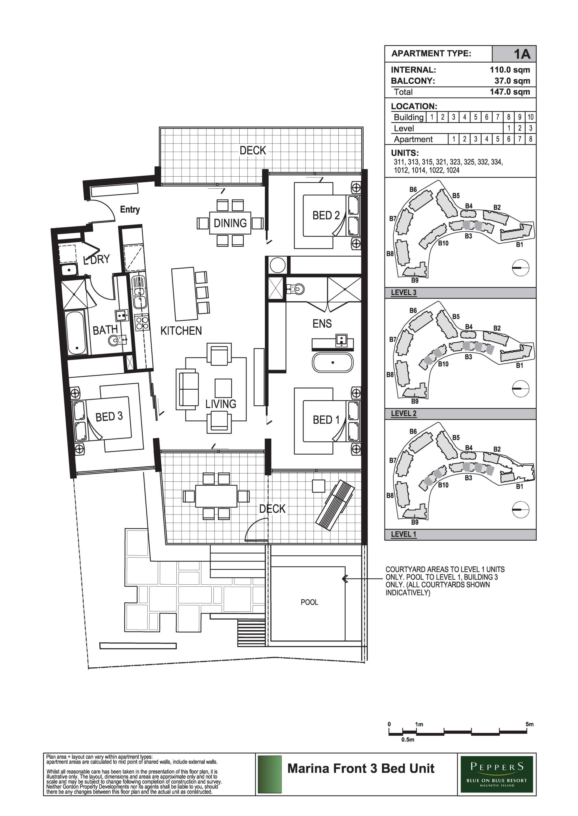
* The open-plan living area opens up through floor-to-ceiling glass doors at both ends to allow a seamless indoor-outdoor transition onto the spacious covered patios and excellent cross-flow ventilation.
* The smaller resort pool is right next door, while the enormous resort lagoon pool is a huge drawcard with swimming areas for all abilities in a lovely relaxed garden environment.
* Wake up to marina views from the luxurious master bedroom with its freestanding bath and separate shower ensuite, floor-to-ceiling glass doors open onto the covered patio.
* Bedroom two also has marina views and the third bedroom is also spacious, opening onto the rear balcony. All bedrooms have built-in-wardrobes and split system air-conditioning is installed throughout the apartment.
* Offered furnished with a quality furniture package, ready to move into or holiday let when you're not relaxing there yourself.
* Located in the popular 'Blue on Blue' complex just metres from the ferry terminal with superb 'Boardwalk' waterfront restaurant, conference rooms, Endota day spa and marina. Shops, supermarket and cafes are all located within a couple of minutes walk.

* Don't delay, three bedroom apartments are a rare commodity these days and in high demand.

Body corp fees approx $14,080 p.a. and council rates approx $3300 p.a. inc water.

 

Contact Alex to arrange a private inspection by appointment - please advise your full availability upon enquiring as we need to work inspections around guest bookings. 

 

3 2 1
Address 321, 123 Sooning St (Blue On Blue), Nelly Bay
Price SOLD for $575,000
Property Type Residential
Property ID 1219
Category Apartment
Floor Area 148 m2

Agent Details

Alex Strens photo

Alex Strens

0429 079 429
View Profile