Acreage lifestyle

Are you looking for room to move, play and work without feeling surrounded by neighbours? 12-14 Dolphin Court offers the lot and represents exceptional value for money considerably below replacement cost. 

4000m2 relatively flat fully fenced block with access from both Dolphin Court and the unformed Parker St to the rear. 

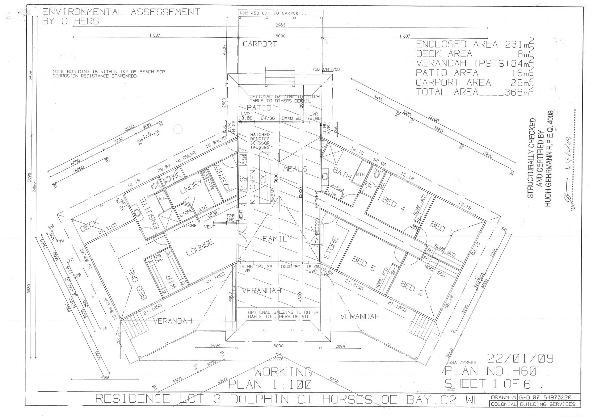
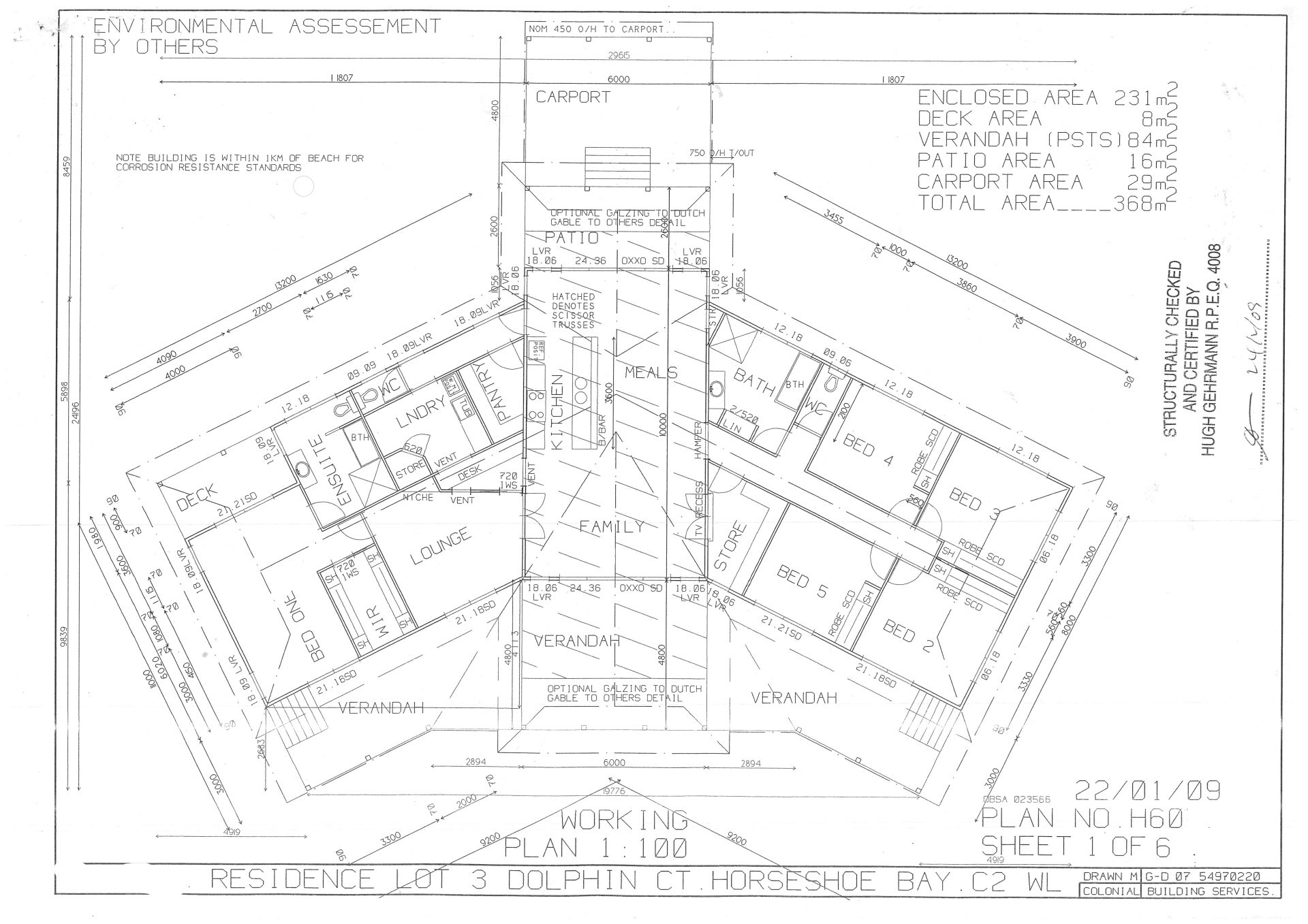
368m2 craftsman-built near new (2015) house with master bedroom wing and separate guest/family wing.

18m x 9m shed with 3 phase power, office, shower & toilet with additional 6m x 10m covered awning.

2 large water tanks attached to the shed and two attached to the house so that not a drop is wasted - although the property is on town water so you never need to worry about running out.

Mains power is connected but 5KW solar panels take care of the majority of usage to keep bills to a minimum. 

Plenty of room for a large family with three covered decks in total - the enormous 84m2 front deck runs the full width of the house opening off the lounge, master bedroom and bedrooms 2 & 3.

Built to capture air-flow and be energy efficient and comfortable in any season, the living area opens onto decks at both ends, with high ceilings, ceiling fans & bespoke touches to the walls, cabinetry and ceilings. 

The galley-style kitchen is sleek and tidy with a breakfast bar island bench and 900mm gas stove, whilst all the messy stuff is tucked around the corner in the butler's pantry with dishwasher, sink and plenty of shelving. Just off the butler's pantry is the laundry with a handy 3rd WC for the house (4th if you add the one in the shed!).

Just off the lounge is the lockable master retreat with private lounge and office nook, large walk-in-wardrobe and ensuite bathroom with shower, bath and double vanity. The huge master bedroom opens onto the front deck and also to a small private deck to the rear, tucked in amongst tropical gardens. 

The west wing is accessed via a hallway off the main living area and comprises four large bedrooms, all with built-in-wardrobes and TV points, family bathroom with bath and separate shower and WC adjacent, plus a huge storeroom/linen cupboard. 

The huge front deck has space for multiple different uses - dining, lounging, exercising etc and enjoys lovely views over the gardens and to the hills of Horseshoe Bay beyond.

The man-cave shed with its own air-conditioned office, toilet and shower will keep any tradies and tinkerers happy and keeps the mess out of the house! 

There's lots more to this property but it must be inspected to be truly appreciated. Contact Alex to arrange an inspection in person or via Facetime/whatsapp/ Zoom if you are unable to attend due to current travel restrictions. 

 

This information has been provided to us by third parties and we do not accept any responsibility for its accuracy. You should make your own enquiries and check the information so as to determine whether or not this information is in fact accurate. You must make your own assessment and obtain professional advice if necessary.

5 2 6 4,000 m2
Address 12-14 Dolphin Ct, Horseshoe Bay
Price SOLD for $925,000
Property Type Residential
Property ID 1217
Category House
Land Area 4,000 m2
Floor Area 368 m2

Agent Details

Alex Strens photo

Alex Strens

0429 079 429
View Profile