Sold

Premium Position - Blue on Bue

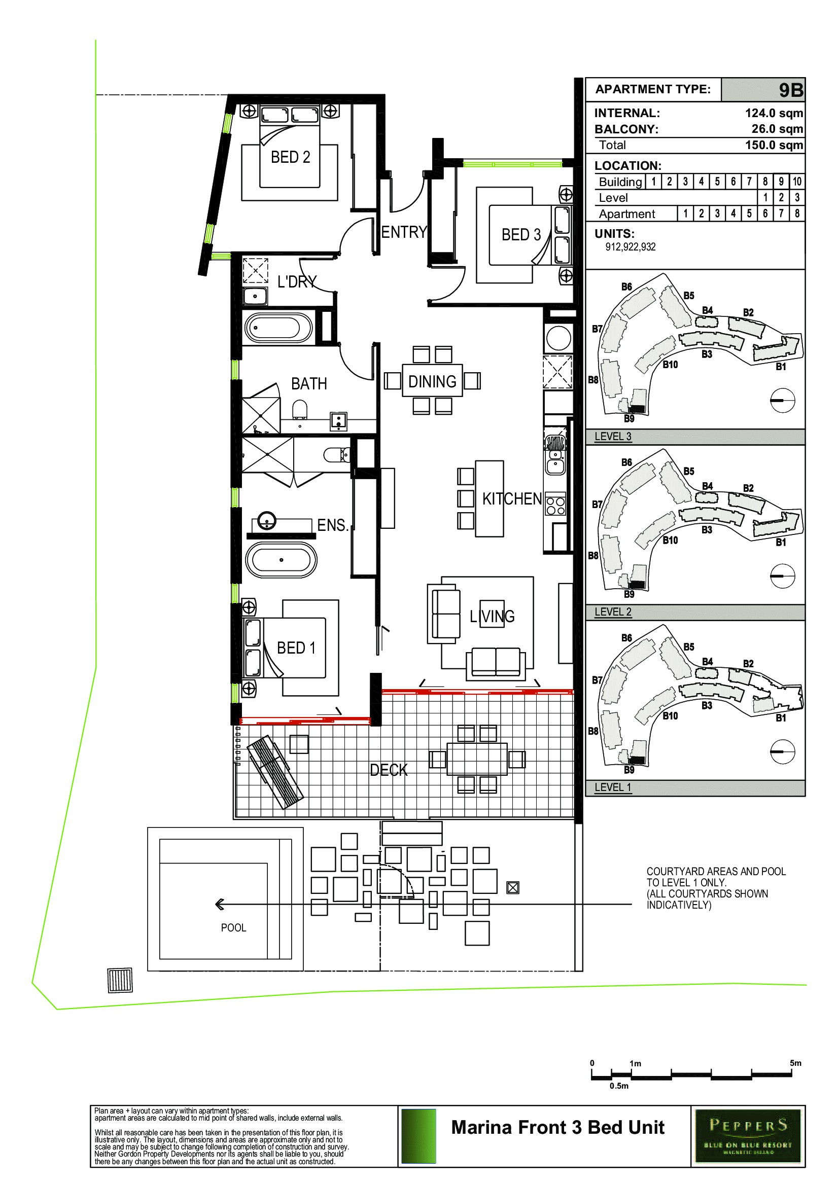
This top floor corner apartment enjoys magnificent views over the marina and south across the Coral Sea to Cape Cleveland and the twinkling lights of Townsville. As soon as you step through the front door, the views can be enjoyed from throughout the apartment with the open-plan living area opening through a wall of glass sliding doors onto the expansive balcony where you can keep an eye on your boat moored in the marina or simply dream of which boat you would like to sail away on.
* Wake up to water views in the master bedroom with its contemporary ensuite bathroom - relax in the stand-alone bathtub or reinvigorate with the rainhead shower.  A huge benefit of this corner unit is the three banks of louvres in the master bedroom and ensuite providing beautiful light and superb cross-ventilation. 
* Two further bedrooms, both with built-in-wardrobes, the second bedroom enjoying both water and mountain views through its dual aspect louvre windows.  
* Offered with the majority of the furniture, just move in and live the island lifestyle or this would make a popular holiday rental that you can use whenever you like and reap the benefits when you're not there.
* Near new split system air conditioning has been installed in the living and two bedrooms, although the cool sea breezes will mean that you don't need it except on the hottest summer days.
* Blue on Blue is a resort-style complex with an enormous lagoon pool, second swimming pool, conference rooms, waterfront bar and restaurant and Endota day spa. Building 9 is well-placed to maximise views, minimise exposure to the hot sun and is generally the quietest, away from the restaurant and pool and next to parkland. 
* Just steps from the ferry, restaurants, cafes and supermarket, you'll have to tear yourself away to explore the 23 beautiful beaches and bays, National Park walking trails, watersports, markets and other activities 'Maggie' has to offer.

Body corp approx $13,575 p.a. and council rates approx $3000 p.a. including water

* Call today to arrange an inspection by appointment. 

3 2 1
Address 932, 123 Sooning St (Blue On Blue), Nelly Bay
Price SOLD for $495,000
Property Type Residential
Property ID 1153
Category Apartment
Floor Area 150 m2

Agent Details

Alex Strens photo

Alex Strens

0429 079 429
View Profile