Blue on Blue Ground Floor Plunge Pool apartment

This neat apartment affords lovely views across the marina with all the convenience of ground floor access and the benefit of a private garden and plunge pool.
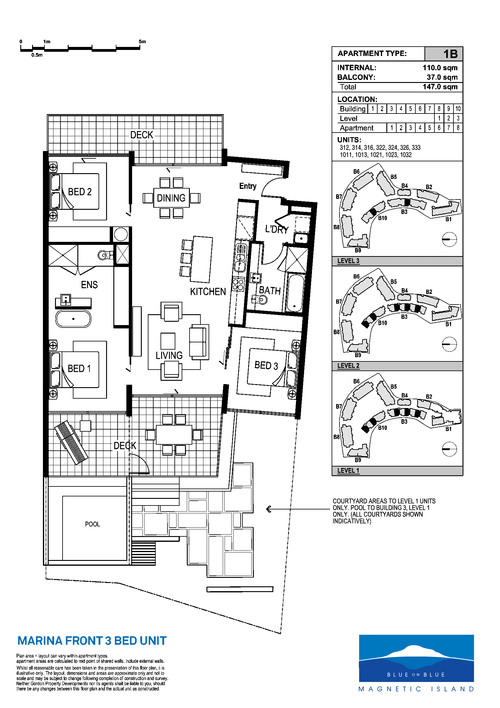
* The open-plan living area opens up through floor-to-ceiling glass doors at both ends to allow a seamless indoor-outdoor transition onto the spacious covered patios and excellent cross-flow ventilation
* Exclusive use garden area with private plunge pool - or if you want to swim laps, there's the enormous resort lagoon pool.
* Wake up to marina views from the master bedroom with its disabled access ensuite and floor-to-ceiling glass doors opening onto the covered patio
* Bedroom two also has marina views and the third bedroom is also spacious, opening onto the rear patio. All bedrooms have built-in-wardrobes and ducted air-conditioning is installed throughout the apartment
* Offered furnished with a quality furniture package, ready to move into or holiday let when you're not relaxing there yourself
* Located in the popular 'Blue on Blue' complex just metres from the ferry terminal with superb 'Boardwalk' waterfront restaurant, conference rooms, Endota day spa and marina. Shops, supermarket and cafes are all located within a couple of minutes walk.
* Don't delay, these ground floor plunge pool apartments are always in high demand. Call to arrange an inspection anytime by appointment.

 

3 2 1
Address 316, 123 Sooning St (Blue On Blue), Nelly Bay
Price SOLD for $520,000
Property Type Residential
Property ID 1138
Category Apartment
Floor Area 148 m2

Agent Details

Alex Strens photo

Alex Strens

0429 079 429
View Profile